Seventeen aprtment Arata 201

ご成約済み物件です

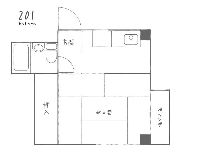
築40年の昭和感あふれる物件をロフト書斎付きで遊び心満載なお部屋にリノベーション。

LINE_ALBUM_セブンティーンアパートメント荒田201完了_220802_Ⅱ
Seventeen aprtment Arata 201
Seventeen aprtment Arata 201


Seventeen aprtment Arata 201


Seventeen aprtment Arata 201

Seventeen aprtment Arata 201
Seventeen aprtment Arata 201

Seventeen aprtment Arata 201
Seventeen aprtment Arata 201
 

【Seventeen aprtment Arata 201】

住所:鹿児島県鹿児島市荒田1-59-12

 家賃:38,000円

 問い合わせ:099-230-7196

Next post →